bonjour
nous venons de faire l'acquisition d'un super emeraude CP 1310 C3 N° 907 F.BJMO
Pour la propulsion, nous avons toute la documentation nécessaire à sa maintenance, mais malheureusement aucun plan de construction
pourriez vous nous indiquer s'il exite toujours les liasses de cet avions (Scintex) et où s'en procurer.
Nous n'avons pas d'historique de cet avion antérieur à 1984.......
en vous remerciant
cordialement
lionel
plans
Re: plans
bonjour
les plans du super emeraude cp1310 sont-ils disponible en ligne ?
je souhaiterai avoir les référence des tambours de freins monté sur l'appareil. sont ils d'origine auto? si oui quel modèle
merci et cordialement
lionel briand
les plans du super emeraude cp1310 sont-ils disponible en ligne ?
je souhaiterai avoir les référence des tambours de freins monté sur l'appareil. sont ils d'origine auto? si oui quel modèle
merci et cordialement
lionel briand
Re: plans
Bonsoir
Contactez le Musée D'angers Marcé pour les plans disponible pour Super Emeraude Scintex.
Sinon --> http://www.musee-aviation-angers.fr/las ... ion-avions
Contactez le Musée D'angers Marcé pour les plans disponible pour Super Emeraude Scintex.
Sinon --> http://www.musee-aviation-angers.fr/las ... ion-avions
Un avion Piel, sinon rien ....
Re: plans
Bonjour,
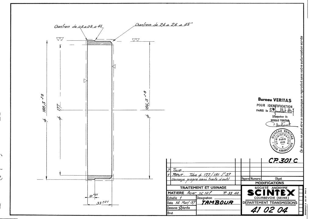
Je joins le plan SCINTEX du tambour... il est identique pour tous les CP de fabrication SCINTEX.
Le Musée d'Angers a compilé les plans SCINTEX et c'est réellement une mine d'informations quasiment indispensable quand on entretient un Piel de fabrication Scintex.
Cordialement
Je joins le plan SCINTEX du tambour... il est identique pour tous les CP de fabrication SCINTEX.
Le Musée d'Angers a compilé les plans SCINTEX et c'est réellement une mine d'informations quasiment indispensable quand on entretient un Piel de fabrication Scintex.
Cordialement
- TheLastOfTheFew
- Formation Théorique

- Messages : 8
- Enregistré le : 09 févr. 2013 22:56
Re: plans
Bonjour,
Pour info on a acheté les plans au musée d'Angers. Puis j'ai passé une nuit blanche à les classer par ATA et sous-chapitres. Et j'ai retransmis le tout au musée. Les prochains acquéreurs pourront donc avoir une liasse structurée pour faciliter les recherches. Il y a quand près de 1000 planches...
MB
Pour info on a acheté les plans au musée d'Angers. Puis j'ai passé une nuit blanche à les classer par ATA et sous-chapitres. Et j'ai retransmis le tout au musée. Les prochains acquéreurs pourront donc avoir une liasse structurée pour faciliter les recherches. Il y a quand près de 1000 planches...
MB
Remise en état du F-BMJM Super Emeraude CP1330 n°942
(Roger, Jérôme, Charles, Stéphane, Julien et Maël)
(Roger, Jérôme, Charles, Stéphane, Julien et Maël)
